Dom O.7-1

Cena: Poznaj cenę

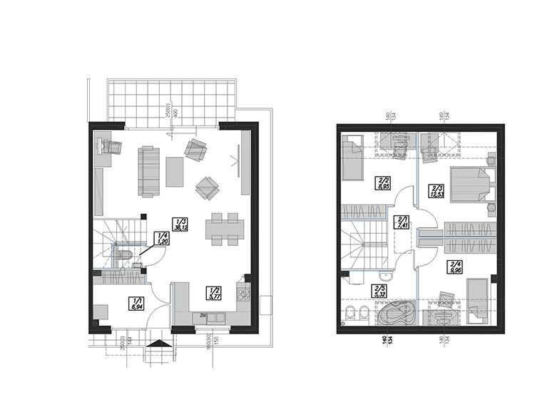
Na sprzedaż dom jednorodzinny w zabudowie bliźniaczej o powierzchni 94,20 m². Na parterze przewidziano przestronny aneks kuchenny oraz komfortową strefę dzienną o powierzchni 36,12 m². Uzupełnieniem parteru jest wiatrołap oraz WC. Na piętrze znajdują się 3 pokoje o powierzchni od 8,95 do 12,53 m² oraz łazienka 5,32 m².

Źródło ciepła: pompa ciepła + instalacja fotowoltaiczna (w cenie domu).

Na terenie osiedla przewidziano ogólnodostępną strefę parkingową.

Powierzchnia: 94,20 m²

Odbiór: II połowa 2025

Pokoje: salon, 3 sypialnie

Garaż: brak

Działka: 320 m²

Zapytaj o dom O.7-1

Szukasz dodatkowych inforamacji? Potrzebujesz fachowego doradztwa?

Pozostaw dane kontaktowe a kontaktuje się z Tobą:

Zbigniew Kondracki
Dyrektor Sprzedaży

*pola obowiązkowe